Contact Agent:

Atkinsons Residential Enfield
57-59 Lancaster Road
Enfield
Middlesex
EN2 OBU

020 8366 0261



Lingfield Close, Enfield, Middlesex, EN1 2JL

£260,000 - For Sale
  1 / 12
  • Flat   
  • 1   
  • 1   
  • 1   

Description:

**LONG LEASE** Bright one bedroom ground floor apartment with communal gardens, resident parking, and garage. Modern, well-maintained, and cosy. Ideal for first-time buyers or investors. Close to local amenities and transport links.
Situated in a well-kept block, this ground floor apartment is just a short walk away from local shops and the Bush Hill Park overground station. Boasting a prime location, this property offers a perfect blend of modern living and convenience. The bright and airy living space is ideal for relaxation and overlooks the manicured lawn, creating a welcoming atmosphere. The well-maintained interior features one spacious bedroom, and a bathroom.

Residents can take advantage of communal gardens, resident parking, and a garage, offering both convenience and comfort. With its desirable location and array of features, this apartment presents a fantastic opportunity for those seeking a well laid out flat. Don't miss out on the chance to make this delightful apartment your new home.
This desirable part of Enfield benefits from cricket, tennis and golf clubs, a hospital, three overground station that can take you into central London within 30 minutes, a myriad of green spaces, lots of shops, bars, restaurants and good road links to M25 and A1M.

Full property material information available via the QR code.

Close to:

Primary Schools,
Raglan Primary School 0.5 miles
Bush Hill Park Primary School 0.8 miles

Secondary Schools,
Edmonton County School 0.8 miles
St Anne's School 0.8 miles

Amenities withing walking distance,
Bush Hill Park Railway Station 0.4 miles
Local Supermarket 0.3 mile
Shops, bars & restaurants of Enfield Town 0.9 miles

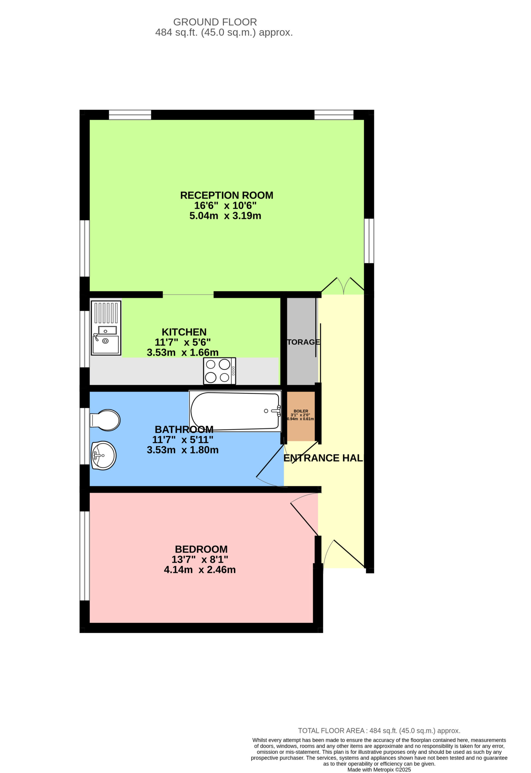
Entrance Hall


Reception Room (5.03m x 3.2m)


Kitchen (3.53m x 1.68m)


Bathroom (3.53m x 1.8m)


Bedroom (4.14m x 2.46m)


Communal Garden


Residents Parking


Garage



  Leasehold
Service Charge
£1890 per year (Ask about the review period)
Length of Lease
954 years left
  Utilities and risks
Utility Support
Electricity: Mains Supply
Water: Mains Supply
Heating: Electric Heating, Night Storage Heating
Broadband: FTTP (Fibre to the Premises)
Sewerage: Mains Supply
Risks
Flooded in last five years: No
Flood source: Ask agent
Flood defences: Ask agent